Działka inwestycyjna 26 arów z PNB 750 m2 PUM 6 domów Liszki
Szczegóły oferty
( 711 PLN/m2) Powierzchnia:
2600 m2 Wymiary:
82x32 Kształt:
prostokąt Ogrodzenie: brak
Opis oferty
Działka inwestycyjna 26 arów z pozwoleniem na budowę (PNB) 750 m2 PUM– Morawica, gm. Liszki
Na sprzedaż atrakcyjna działka inwestycyjna o powierzchni 2569 m², z wydanym pozwoleniem na budowę, położona w malowniczej miejscowości Morawica, w gminie Liszki, w sąsiedztwie Krakowa. Nieruchomość składa się z trzech działek ewidencyjnych o kształcie prostokąta i wymiarach 82 m x 32 m. Teren jest płaski, dobrze nasłoneczniony, co czyni go idealnym miejscem pod inwestycję deweloperską.
Działka ma bezpośredni dostęp z trzech stron do asfaltowej drogi gminnej, co zapewnia wygodny dojazd. W sąsiedztwie znajdują się domy jednorodzinne oraz lasy, co gwarantuje spokojną i zieloną okolicę.
Media:
-
Prąd
-
Woda
-
Kanalizacja
-
Gaz
Wszystkie media dostępne są w drodze gminnej, co znacznie ułatwia podłączenie nieruchomości do infrastruktury.
Projekt budowlany:
Działka posiada pozwolenie na budowę trzech budynków mieszkalnych w zabudowie bliźniaczej, 6 segmantów z łączną powierzchnią użytkowo-mieszkalną 748,38 m². Każdy budynek składa się z dwóch lokali mieszkalnych, z których każdy posiada powierzchnię użytkową 124,73 m². Do każdego mieszkania przynależy około 410 m² działki.
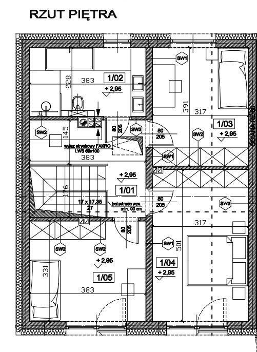
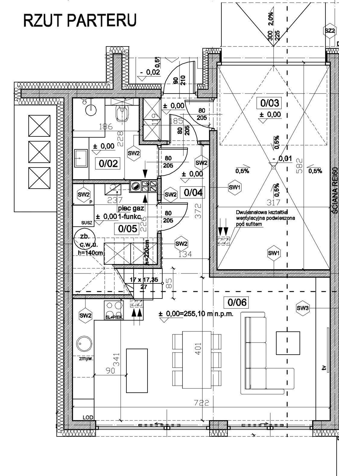
Rozkład lokalu (124,73 m²):
-
Parter (63,52 m²): Garaż (18,55 m²), salon z kuchnią (26,82 m²), pomieszczenie gospodarcze (4,43 m²), łazienka z WC (4,75 m²), komunikacja (6,72 m²), wiatrołap (2,25 m²)
-
Piętro I (61,21 m²): 3 sypialnie (12,43 m², 15,94 m², 12,75 m²), łazienka z WC (8,78 m²), komunikacja (11,31 m²)
Lokalizacja:
Działka położona jest w cichej i spokojnej okolicy, w sąsiedztwie nowoczesnej zabudowy jednorodzinnej. W pobliżu znajduje się wiele atrakcji i udogodnień, w tym:
-
Las Dolina Aleksandrowicka z szlakami pieszo-rowerowymi (200 m)
-
Ścieżka rowerowa (300 m)
-
Szkoła podstawowa i przedszkole (100 m)
-
Przystanek autobusowy (300 m)
-
Przychodnia (1,3 km)
-
Sklep spożywczy (1,5 km)
-
Kąpielisko Kryspinów (6 km)
-
Centrum Krakowa (17 km)
-
Lotnisko Balice (6 km)
-
Węzeł autostradowy A4 – Balice II (6 km)
Doskonała komunikacja z Krakowem oraz bliskość natury (las, tereny rekreacyjne) czynią tę lokalizację idealnym miejscem zarówno do życia, jak i inwestycji.
Cena: 1 850 000 zł netto plus 23% VAT
Działka z pozwoleniem na budowę to doskonała okazja inwestycyjna. Zapraszam do kontaktu w celu uzyskania dodatkowych informacji i umówienia się na prezentację nieruchomości.
Lokalizacja
Zamieszczone na naszych stronach oferty nie stanowią oferty w rozumieniu Kodeksu Cywilnego, a dane w nich zawarte mają jedynie charakter informacyjny i mogą ulec zmianie. Każde biuro nieruchomości działające pod marką neodom® jest niezależnym podmiotem gospodarczym.
Szczegóły oferty
( 711 PLN/m2) Powierzchnia:
2600 m2 Wymiary:
82x32 Kształt:
prostokąt Ogrodzenie: brak
Detale oferty
| Przeznaczenie | budowlana, inwestycyjna |
| Warunki zabudowy | Miejscowy Plan Zagospodarowania Przestrzennego |
| Zabudowanie działki | niezabudowana |
| Zagospodarowanie | niezagospodarowana |
| Informacje o MPZP | MN-działka z Pozwoleniem na budowę 6 domów |
| Gaz | tak |
| Woda | tak |
| Powierzchnia działki m2 | 2600 |
| Szerokość frontu działki | 82 |
| Wymiary działki | 82x32 |
| Kształt działki | prostokąt |
| Ukształtowanie działki | płaska |
| Zagospodarowanie działki | częściowo zalesiona |
| Ogrodzenie działki | brak |