Kompleks Biurowo-Usługowy | Tartaczna | Kielce
Szczegóły oferty
(41 PLN/m2) Powierzchnia:
600 m2 Wejście: od ulicy
Opis oferty
Do wynajęcia atrakcyjny kompleks biurowo-magazynowy położony w Kielcach przy ul. Tartacznej, w lokalizacji zapewniającej sprawną komunikację z pozostałymi częściami miasta. Nieruchomość stanowi doskonałą propozycję dla przedsiębiorstw poszukujących przestrzeni biurowej połączonej z zapleczem magazynowym lub technicznym.
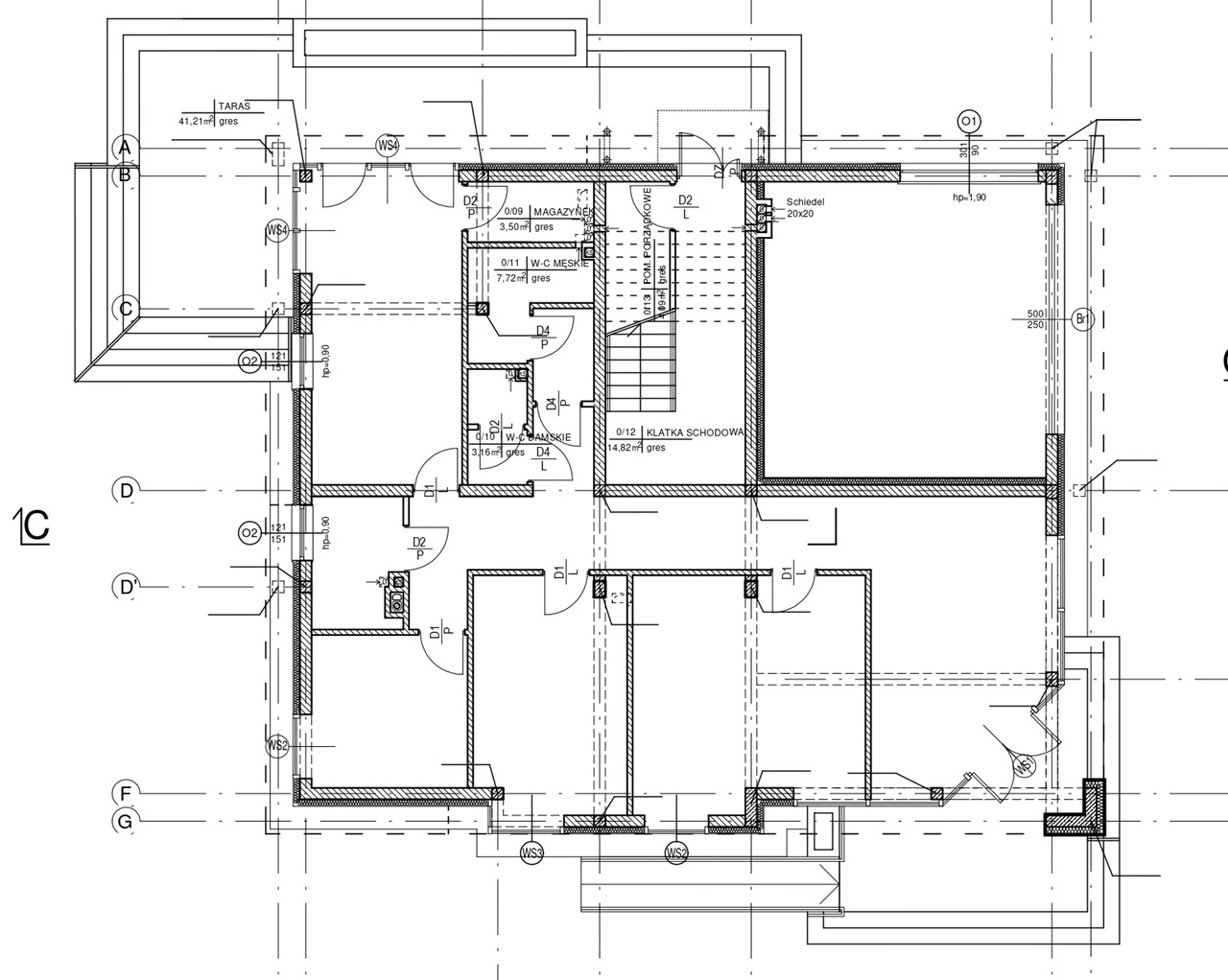
Część biurowa 289 m²
Nowo powstały dwupiętrowy budynek biurowy o łącznej powierzchni 289 m², zaprojektowany z myślą o komforcie pracy oraz funkcjonalnym układzie pomieszczeń.
Parter 140 m²:
-
przestronny hol wejściowy z recepcją
-
cztery niezależne biura o powierzchniach:
-
25 m²
-
42 m²
-
17,71 m²
-
11,56 m²
-
-
sala konferencyjna o powierzchni 22,64 m²
-
zaplecze socjalne
-
toalety
-
garaż w bryle budynku, mieszczący dwa samochody
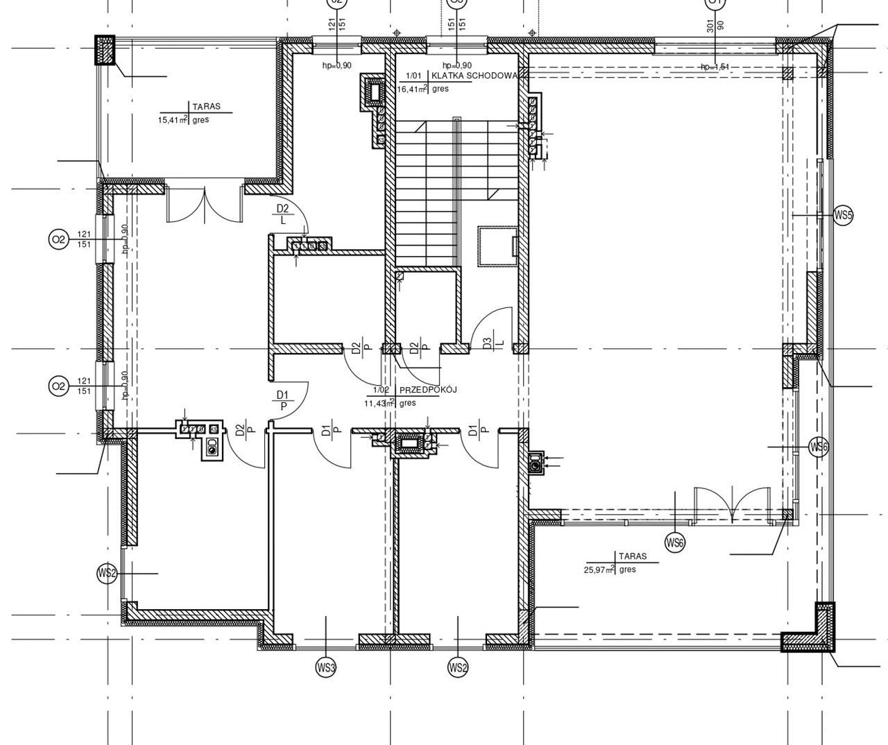
Piętro 149 m²:
-
hol komunikacyjny
-
cztery pomieszczenia biurowe o metrażach:
-
14,44 m²
-
14,83 m²
-
27,6 m²
-
21,89 m²
-
-
toalety
-
pomieszczenie socjalne
Budynek dostępny do użytkowania od zaraz.
Część magazynowa ok. 300 m²
Na terenie nieruchomości usytuowany jest oddzielny obiekt magazynowy o powierzchni około 300 m², który może pełnić funkcję:
-
magazynu wysokiego lub niskiego składowania
-
hali logistycznej
-
zaplecza technicznego
-
lekkiej przestrzeni produkcyjnej
Obiekt daje możliwość elastycznego dopasowania do charakteru prowadzonej działalności.
Otoczenie i udogodnienia
-
rozległy plac z dużą liczbą miejsc parkingowych
-
posesja ogrodzona i objęta monitoringiem
-
dostęp do wszystkich mediów: energia elektryczna, woda, kanalizacja, gaz
-
komfortowy dojazd nawierzchnią asfaltową
-
dogodna komunikacja dla pojazdów osobowych oraz dostawczych
Czynsz najmu: 25 000 zł netto
Kaucja: 25 000 zł netto
Media: kanalizacja, prąd, wodociąg, gaz
Istnieje możliwość wynajmu oddzielnej części za kwotę 15 000 zł netto
Opłaty za media według stanu licznika.
Zapraszamy do oglądania nieruchomości !
Więcej informacji pod telefonem 888 200 444 lub w siedzibie biura Kielce ul. Wspólna 2B/25 (parter) oraz na www.neodom.pl
Lokalizacja
Zamieszczone na naszych stronach oferty nie stanowią oferty w rozumieniu Kodeksu Cywilnego, a dane w nich zawarte mają jedynie charakter informacyjny i mogą ulec zmianie. Każde biuro nieruchomości działające pod marką neodom® jest niezależnym podmiotem gospodarczym.
Szczegóły oferty
(41 PLN/m2) Powierzchnia:
600 m2 Wejście: od ulicy
Detale oferty
| Przeznaczenie | biurowy, handlowy, handlowo-usługowy, usługowy, magazyn, warsztat, produkcja |
| Stan lokalu | wysoki standard |
| Typ lokalu | dwupoziomowe |
| Okna | nowe aluminiowe |
| Wejście | od ulicy |
| Ilość wejść | 3 |
| Opcje dodatkowe | teren ogrodzony |
| Ogrzewanie | własne gazowe |
| Gaz | tak |
| Woda | tak – miejska |
| Rok budowy | 2024 |
| Ilość pięter | 1 |
| Własny parking | Tak |
| Możliwość parkowania | Tak |
| Położenie lokalu | w pobliżu głównego ciągu pieszych |
| Otoczenie | domy jednorodzinne, działki niezabudowane, działki zabudowane |
| Komunikacja miejska | autobus |
| Dojazd | asfalt |