Zabudowa bliźniacza | Osiedle Podlesie | gm. Zagnańsk
Szczegóły oferty
(3 862 PLN/m2) Powierzchnia:
145 m2 5 pokoi Ilość kondygnacji: 1 Wymiary działki:
12x50
Opis oferty
Rynek pierwotny. Kupujący zwolniony z płacenia podatku PCC
Na sprzedaż budynki mieszkalne jednorodzinne w zabudowie bliźniaczej, położone w malowniczej, spokojnej miejscowości Samsonów Podlesie gmina Zagnańsk. Atutem lokalizacji jest mnóstwo terenów zielonych.
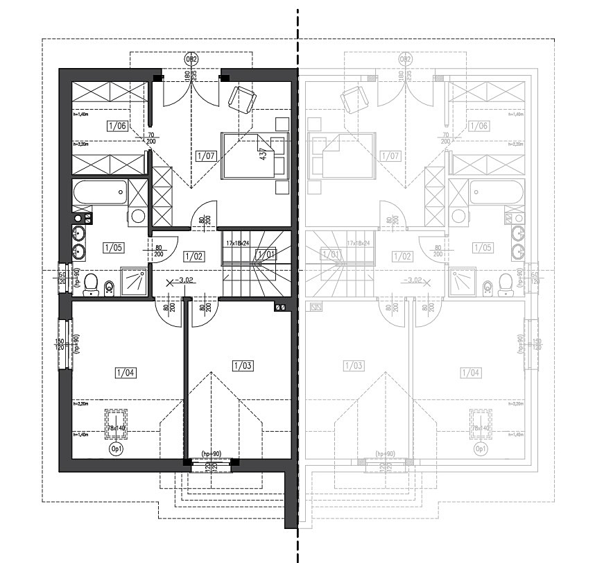
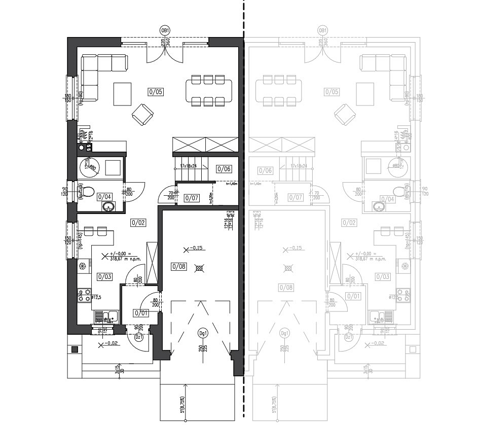
Na powierzchnię użytkową 136,40 m2 (całkowitą 144,86 m2) składa się:
PARTER:
- wiatrołap (pow. 2,25m2),
- hall (pow. 8,32 m2),
- łazienka z WC (pow. 2,03 m2),
- pomieszczenie techniczne (pow. 2,91 m2),
- pomieszczenie gospodarcze (pow. 1,87 m2),
- salon z jadalnią (pow. 28,29 m2),
- kuchnia (pow. 7,89 m2),
- garaż (pow. 17,9 m2)
PODDASZE:
- łazienka z WC (pow. 8,01 m2),
- sypialnia (pow. 16,44 m2),
- garderoba (pow. 3,69 m2),
- sypialnia (pow. 12,96 m2),
- sypialnia (pow. 11,9 m2),
- korytarz (pow. 4,22 m2)
Projekt obejmuje możliwość kupna domu w stanie deweloperskim. Cena nie obejmuje dokończenia poddasza oraz pompy ciepła. Nieruchomości usytuowane zostały na częściowo ogrodzonej działce 600 m2 o wymiarach 12x50. W każdym domu wydzielono dwie funkcjonalne strefy: dzienną z salonem na parterze i prywatną z sypialniami na piętrze. Projekt nieruchomości posiada również indywidualny garaż, podjazd wyłożony kostką oraz zewnętrzne miejsce postojowe zlokalizowane bezpośrednio przy wejściu do budynku. Z tyłu natomiast wydzielono taras, który został wyłożony kostką oraz dodatkową przestrzeń w postaci ogródka do własnej aranżacji. Komfortowa, nowoczesna oraz funkcjonalna inwestycja czeka na swojego właściciela. Budynek wykonany jest w tradycyjnej technologii o wysokich parametrach cieplnych, gwarantujących niskie koszty ogrzewania. Instalacja centralnego ogrzewania przygotowana pod montaż pompy ciepła. (w całym budynku rozprowadzona instalacja podłogowa). Zainstalowana wentylacja mechaniczna (rekuperacja). Rok budowy 2024. Oferta deweloperska . Kupujący nie płacić PCC.
Media: woda, prąd, kanalizacja, dostępny światłowód
SPECYFIKACJA DOMÓW ZAWIERA:
- kompletna instalacją co i c.w.u,
- ogrzewanie podłogowe,
- kompletną instalację wodnokanalizacyjną,
- instalację elektryczną,
- kompletną instalacje rekuperacji ze sterownikiem wewnętrznym,
- ocieplenie (20cm styropian) wykończone tynkiem,
- ocieplenie poddasza ,
- brama garażowa segmentowa z napędem i pilotami,
- drzwi wejściowe antywłamaniowe i energooszczędne,
- stolarka okienna energooszczędna ze szkleniem 3- szybowym, w cenie również drzwi tarasowe wykonane z aluminium w systemie przesuwnym HS,
- ogrodzenie działki z 3 stron (do wykonania pozostaje front wg. własnego projektu),
- kostka wokół budynku, na tarasie oraz podjazd,
- dach wykonany z blacha rąbek,
- ocieplenie - o gr 20 cm styropianu,
- ściany - beton komórkowy H+H,
- droga dojazdowa utwardzona.
Dojazd drogą asfaltową 18 km od centrum Kielc. W najbliższym otoczeniu mnóstwo terenów zielonych, rzeka Bobrza, ścieżka rowerowa, akweny wodne, oceanarium. W odległości 2 min. samochodem zobaczymy liczne zabytki takie jak wielki piec z wieżą i ruiną odlewni, Dąb Bartek, rezerwat Barcza.
Zapraszamy do oglądania nieruchomości !
Więcej informacji pod telefonem 888 200 444 lub w siedzibie biura Kielce ul. Wspólna 2B/25 (parter) oraz na www.neodom.pl
Lokalizacja
Zamieszczone na naszych stronach oferty nie stanowią oferty w rozumieniu Kodeksu Cywilnego, a dane w nich zawarte mają jedynie charakter informacyjny i mogą ulec zmianie. Każde biuro nieruchomości działające pod marką neodom® jest niezależnym podmiotem gospodarczym.
Szczegóły oferty
(3 862 PLN/m2) Powierzchnia:
145 m2 5 pokoi Ilość kondygnacji: 1 Wymiary działki:
12x50
Detale oferty
| Rodzaj domu | bliźniak |
| Stan domu | stan deweloperski |
| Rok budowy | 2024 |
| Ilość kondygnacji | 1 |
| Umeblowanie | nieumeblowane |
| Pokrycie dachu | blacha |
| Opcje dodatkowe | teren ogrodzony, drzwi antywłamaniowe |
| Ilość pokoi | 5 pokoi |
| Ilość sypialni | 3 |
| Typ kuchni | oddzielna |
| Rodzaj kuchni | jasna z oknem |
| Ogrzewanie | podłogowe |
| Gaz | brak |
| Woda | tak |
| Powierzchnia działki m2 | 600 |
| Szerokość frontu działki | 12 |
| Wymiary działki | 12x50 |
| Kształt działki | prostokąt |
| Ukształtowanie działki | płaska |
| Zagospodarowanie działki | częściowo zalesiona |
| Ogrodzenie działki | częściowo ogrodzona |
| Grunt utwardzony | Tak |
| Taras | jest |
| Garaż | garaż |
| Powierzchnia garażu | 18 m2 |
| Otoczenie | domy jednorodzinne, działki niezabudowane, działki zabudowane, inne budynki, las, nowe osiedle, tereny zielone |
| Komunikacja miejska | autobus, bus |
| Dojazd | droga utwardzona |