Neodom Dom Sprzedaż Wtórny Dom jednorodzinny | Fotowoltaika | Daleszyce
DAL-DS-8572

Dom jednorodzinny | Fotowoltaika | Daleszyce

Daleszyce, Sienkiewicza
DAL-DS-8572 Zadzwoń
780 000 PLN
6 500 PLN/m2
1/16

Szczegóły oferty

780 000 PLN
(6 500 PLN/m2)
Powierzchnia:
120 m2
5 pokoi Ilość kondygnacji: 2 Wymiary działki:
11x120

Opis oferty

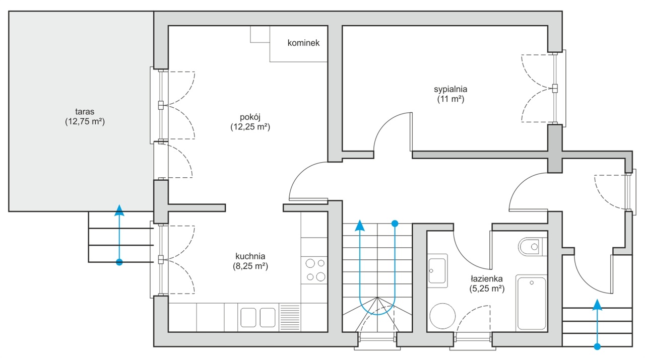
Na sprzedaż dom jednorodzinny o powierzchni użytkowej około 120 m², położony w miejscowości Daleszyce przy ul. Henryka Sienkiewicza. Nieruchomość usytuowana jest na dużej działce o powierzchni 1318 m², z bezpośrednim wjazdem z drogi głównej prowadzącej w kierunku Kielce

Na powierzchnię około 120 m² składa się:

Parter:

  • wiatrołap,

  • salon z kominkiem oraz wyjściem na taras,

  • kuchnia otwarta na salon,

  • sypialnia,

  • łazienka.

Poddasze użytkowe:

  • pokój ok. 21 m²,

  • pokój ok. 11 m²,

  • pokój ok. 9 m².

Dom murowany z użytkowym poddaszem, położony na przestronnej działce dającej duże możliwości zagospodarowania. Od strony ogrodu znajduje się taras, z którego rozpościera się widok na dużą, zieloną przestrzeń. Nieruchomość idealnie sprawdzi się zarówno jako miejsce do zamieszkania, jak również pod prowadzenie działalności gospodarczej. Na działce znajduje się wolnostojący garaż, połączony z budynkiem gospodarczym.

Budynek przeszedł częściową modernizację - wykonano nową elewację oraz tynki wewnętrzne, a dach został wymieniony przy montażu instalacji fotowoltaicznej. Dzięki temu nowy właściciel może dostosować wnętrza do własnych potrzeb. Dodatkowo w sypialniach zamontowano klimatyzacje. 

SZCZEGÓŁY NIERUCHOMOŚCI:

  • pompa ciepła,

  • instalacja fotowoltaiczna,

  • kominek w salonie,

  • dach kryty blachodachówką (nowy),

  • nowe tynki wewnętrzne,

  • nowa elewacja zewnętrzna,

  • klimatyzacja,

  • bezpośredni wjazd z drogi głównej.

Działka ogrodzona, z dużym potencjałem aranżacyjnym - istnieje możliwość stworzenia ogrodu, altany, miejsca rekreacyjnego lub przestrzeni pod działalność usługową. Nieruchomość położona w dobrze skomunikowanej lokalizacji - szybki dojazd do Kielc (kilkanaście minut samochodem). W okolicy znajdują się sklepy, szkoła oraz tereny zielone sprzyjające rekreacji. Dom idealny dla osób poszukujących spokojnego miejsca do życia z jednoczesnym szybkim dostępem do miasta.

Media: prąd, woda, kanalizacja.

Ogrzewanie: pompa ciepła.

Zapraszamy do oglądania nieruchomości !

Więcej informacji pod telefonem 888 200 444 lub w siedzibie biura Kielce ul. Wspólna 2B/25 (parter) oraz na www.neodom.pl

Lokalizacja

Zamieszczone na naszych stronach oferty nie stanowią oferty w rozumieniu Kodeksu Cywilnego, a dane w nich zawarte mają jedynie charakter informacyjny i mogą ulec zmianie. Każde biuro nieruchomości działające pod marką neodom® jest niezależnym podmiotem gospodarczym.

Szczegóły oferty

780 000 PLN
(6 500 PLN/m2)
Powierzchnia:
120 m2
5 pokoi Ilość kondygnacji: 2 Wymiary działki:
11x120

Detale oferty

Rodzaj domu bliźniak
Stan domu do odświeżenia
Rok budowy 2011
Ilość kondygnacji 2
Umeblowanie częściowo umeblowane
Pokrycie dachu blachodachówka
Klimatyzacja Tak
Opcje dodatkowe teren ogrodzony
Ilość pokoi 5 pokoi
Ilość sypialni 4
Wyposażenie pokoi krzesła, ława, łóżko, sofy, stół, szafy
Typ kuchni oddzielna
Rodzaj kuchni jasna z oknem
Wyposażenie kuchni kuchenka gazowa, lodówka, okap, piekarnik
Wyposażenie łazienki pralka, umywalka, wanna, wc
Gaz brak
Woda tak – miejska
Powierzchnia działki m2 1318
Szerokość frontu działki 11
Wymiary działki 11x120
Kształt działki prostokąt
Ukształtowanie działki płaska
Zagospodarowanie działki falista
Ogrodzenie działki betonowe
Taras taras duży
Garaż wolnostojący
Otoczenie domy jednorodzinne, działki niezabudowane, działki zabudowane, inne budynki, las, nowe osiedle, tereny zielone
Komunikacja miejska autobus, bus
Dojazd asfalt

Uzyskaj pomoc
w finansowaniu.

Dowiedz się więcej

Może zainteresujesz się

neodom® używa na tej witrynie plików cookie i podobnych rozwiązań technologicznych do ulepszania i dostosowania treści, analizy ruchu, dostarczania reklam oraz ochrony oraz spamem. Dowiedz się więcej.
Akceptuję